热门搜索: 万科 杭州 保利 昆山 虹桥汇
您当前位置: 首页 > 楼盘 > 上海 > 嘉定区
新虹桥时代公馆

报价:

16500

元/㎡

【特价房源】限时,仅1套!

已有187人报名

面积:58-83平米

装修情况:精装交付

交房时间:现房

楼盘地址:嘉定宝安公路4339号

开发商:

电话图标 1358-5654-666

问底价?不如一个电话轻松搞定!

图标 降价通知

图标预约看房

楼盘信息

项目介绍

一、区域:本案坐落于上海大力发展的嘉定新城板块,嘉定位于上海的西北门户,与江苏的苏州接壤,是连接上海与江苏经济、交通、物流的命脉。距离虹桥国际商务区仅20公里,上海市仅30公里。
 
 
二、交通:距离 11 号线上海赛车场站仅1.5 公里,进入上海中环,通花桥。即可进入绕城高速、沈海高速、京沪高速。交通非常便捷,四通八达。
 
 
三、项目:本案位于唐朝大酒店B幢,共33层,每层27间,共7部电梯。即买即住即出租。目前、项目周边租金高达3000-4000元/月、回报率高达4.5%。项目作为板块内建筑、紧邻国际五金机电城,辐射人流必将上升,发展更是节节攀升。项目紧邻嘉定高尔夫球场,直线距离200米以内。清晨起床、推开窗户即可远望高尔夫球场,呼吸清新空气,为新一天的生活增光添彩。
 
 
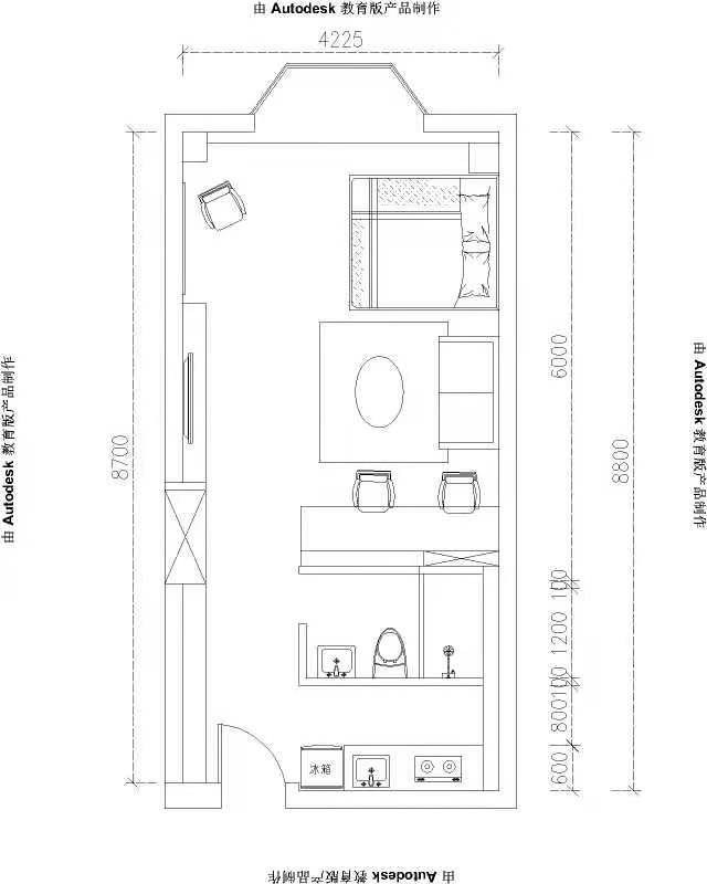
四、销售:现房销售、无需等待装修, 总高33层, 7梯27户,层高3.3米,户型方正,超大落地窗,全明设计,微阳台。面积58、61、83平米,单价16300元,总价90万左右
 


数据参数

  • 所属区域
    嘉定区
    售楼电话
    1358-5654-666
    停  车  位
  • 楼盘名称
    新虹桥时代公馆
    开盘时间
    物  业  费
  • 楼盘特色
    交房时间
    现房
    物业公司
  • 楼盘类型
    酒店式公寓
    装修情况
    精装交付
    建筑面积
  • 产权年限
    容  积  率
    占地面积
  • 楼盘报价
    16500元/平方米
    绿  化  率
    开  发  商
  • 户型面积
    58-83平米
    总  栋  数
    预售证号
  • 付款方式
    总  户  数
    458套
    楼盘地址
    嘉定宝安公路4339号

周边配套

  • 学校
    1.5公里方泰小学,方泰幼儿园,3.5公里同济大学嘉定分校
  • 购物
  • 医院
    4公里上海瑞金医院
  • 生活
    悠享10分钟生活半径——项目周边学校、商场、邮局、医院、教育一应俱全,上海国际机电五金城生活圈及方泰镇生活圈提供日常生活
  • 娱乐
  • 餐饮
户型图
相册
地图
你可能感兴趣的楼盘

您要预约看房的楼盘是
新虹桥时代公馆

  • 您要预约降价通知的楼盘是
    新虹桥时代公馆

  • 您要预约看房的楼盘是
    新虹桥时代公馆

  • 您要降价通知的楼盘是
    新虹桥时代公馆